Projekty domów z antresolą realizowane w Poznaniu mogą być naprawdę różnorodne i wyjątkowe. Jedną z takich budowli jest nowa odsłona nowoczesnej stodoły z poddaszem – prosta, spójna bryła uzupełniona o antresolę oraz ok. 43 m² przestrzeni użytkowej do elastycznej adaptacji.
Projekty domu parterowego z antresolą – Poznań
Ta nowoczesna stodoła z poddaszem zachwyca już od progu, a to za sprawą przeszklonego wejścia. Dalej wiatrołap z garderobą prowadzi wprost do wysokiej, jasnej strefy dziennej – sercem domu jest otwarta przestrzeń łącząca salon, jadalnię oraz kuchnię. Dzięki dużym przesuwnym oknom wnętrze płynnie łączy się z zadaszonym tarasem i przytulnym patio zapewniającym prywatność w otoczeniu zieleni. W głębi domu znajduje się strefa prywatna, która obejmuje:
- sypialnię główną z dwiema garderobami i wyjściem do ogrodu,
- dwie sypialnie bliźniacze z dużymi oknami,
- dwie łazienki – jedną z prysznicem przy salonie oraz drugą, kąpielową, z widokiem na naturę,
- pralnię z kotłownią, dopełniającą funkcjonalny układ wnętrz.
Taka wielkość i układ pomieszczeń sprawiają, że dla wielu osób jest to po prostu idealny dom z antresolą. Ten projekt, zrealizowany w Poznaniu albo w jego okolicach, doskonale wpisze się w wielkopolski krajobraz i aktualne standardy budownictwa.
Nowe aspekty projektu domu nowoczesnego z antresolą – Poznań
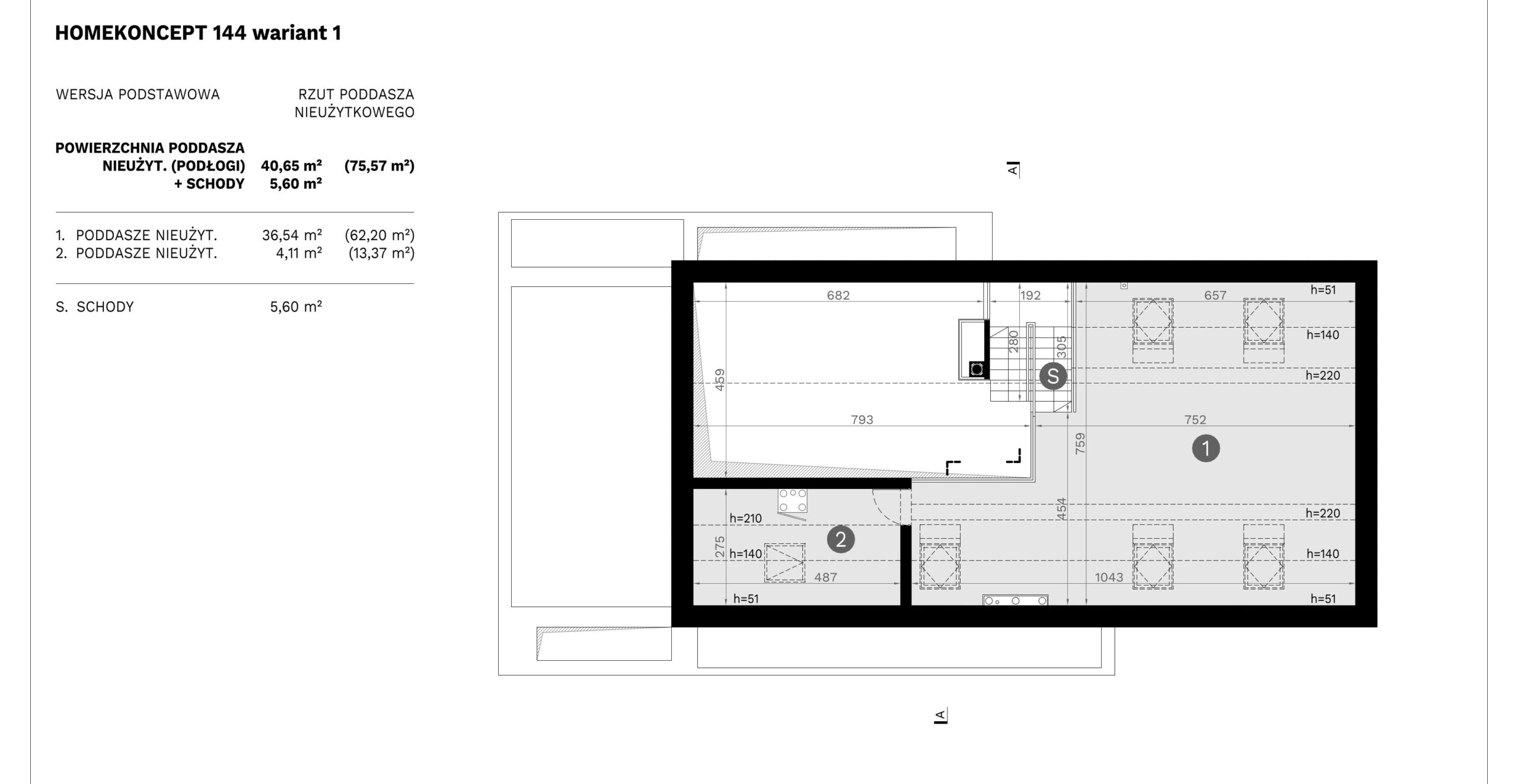
Nowa elewacja zyskuje lekkość dzięki połączeniu bieli tynku i jasnego drewna. Na froncie pojawiają się ażurowe detale, które podnoszą estetykę i jednocześnie zwiększają poziom prywatności (osłaniając okno łazienki). Od strony tarasu zaplanowano praktyczną, osłoniętą wiatę gospodarczą – idealną na rowery, kosiarkę i sprzęt ogrodowy. Znakiem rozpoznawczym tej serii pozostaje wysoka strefa dzienna, a nowość stanowi dodatkowo zaprojektowane funkcjonalne poddasze, którego jedyną wydzieloną część stanowi stryszek nad kuchnią. W zależności od potrzeb domowników reszta poddasza może pełnić rolę biura, biblioteki, siłowni, sali kinowej lub strefy relaksu.
Zmiany w układzie wnętrza wynikają z dodania schodów: pojawia się pralnia pod schodami, a sypialnia główna została przeniesiona od strony ogrodu, z atrakcyjnym narożnym oknem. Po drugiej stronie znajdują się dwa równe, ustawne pokoje z dostępem do światła dziennego – sprawdzą się idealnie jako sypialnie, gabinety lub pokoje gościnne. Ten projekt domu nowoczesnego w Poznaniu to budowla, która „rośnie” razem z rodziną – dzięki adaptowalnemu poddaszu łatwo dopasujesz ją do pracy, wypoczynku i zmieniającego się stylu życia.
Realizacja budowy domu z antresolą
Projekty domów z antresolą w Poznaniu realizujemy w technologii tradycyjnej murowanej, dzięki czemu są one trwałe i solidne. Prace zawsze przebiegają zgodnie ze sztuką budowlaną i harmonogramem. W kosztorysie domu przedstawiamy przejrzyste zestawienie zakresu działania i wykorzystanych materiałów, aby inwestor dokładnie wiedział, co składa się na cenę oraz jaki standard wykonania otrzymuje na każdym etapie.
Stosujemy materiały budowlane o potwierdzonej jakości, spełniające wymagania techniczne, aktualne normy budowlane oraz obowiązujące przepisy. Dobieramy rozwiązania adekwatne do projektu domu nowoczesnego z antresolą, warunków gruntowych w Poznaniu i oczekiwanego standardu, dbając o trwałość konstrukcji, izolacyjność i bezpieczeństwo użytkowania. Każdy element – od fundamentów, przez ściany nośne i stropy, po konstrukcję oraz pokrycie dachu – jest wykonywany z należytą starannością i kontrolą jakości.
Jeśli szukasz wykonawcy, który przygotuje rzetelny kosztorys budowy domu i poprowadzi inwestycję w sposób uporządkowany, terminowy i profesjonalny – jesteśmy do dyspozycji. Budujemy domy spełniające realne wymagania użytkowe i zachowujące wartość na lata.
Uzupełnij formularz i odbierz darmowy kosztorys projektu!














